Actualités
Espace client
Nouvelle recherche Cette annonce m'intéresse

Vente Maison à Damery

Prix : 273 000,00 
Honoraires inclus à la charge du vendeur.
Type de bien : Maison
Pièces : 7 pièces
Surface : 175,00m²
Localité : Damery (51480)
Référence : 51085-506

Description du bien

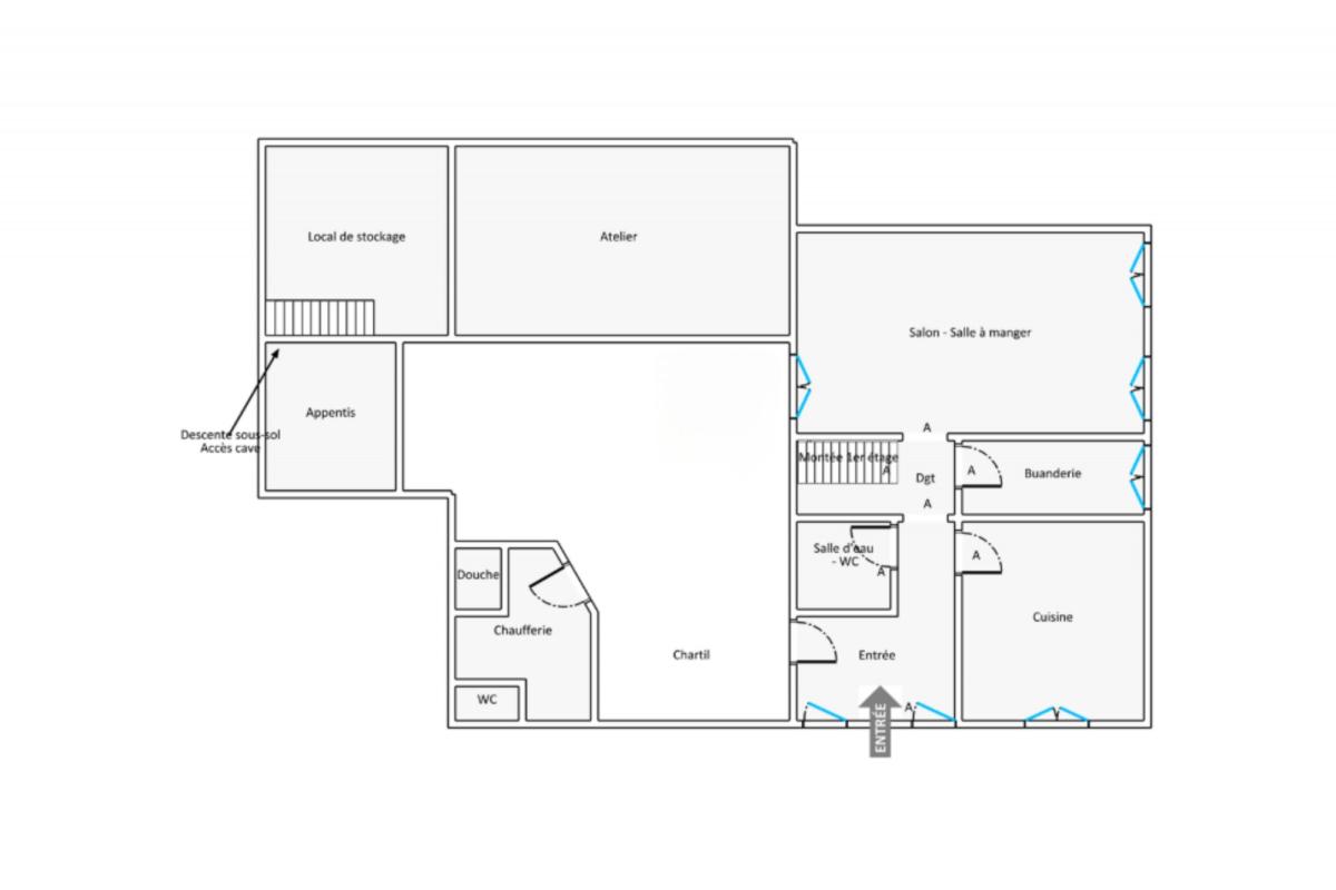
Si vous cherchez un bien avec du potentiel cette maison est pour vous !

Autour d'une cour intérieure vous découvrirez une maison de vigneron avec de très belles caves pouvant offrir un espace de stockage ou de réception . Ce bien vous ravira par son intimité et son calme.

Son séjour est spacieux, la cuisine est grande et aménagée ne nécessitant aucun travaux, une douche au rez-de-chaussée et une salle de bains à l'étage. L'étage offre 5 chambres et un grenier aménageable.

Le bâtiment attenant est entièrement aménageable, ce bien offre de belles possibilités d'extension si nécessaire. Une douche et un WC sont aménagés dans une petite annexe au bâtiment.

Un van peut être stationné à l'intérieur la hauteur de la porte électrique le permettant.

Performance énergétique

logement extrêmement consommateur d’énergie logement très performant passoire énergétique kg CO /m².an ² consommation (énergie primaire) émissions kWh/m².an 169 19 *
19 kg CO /m².an ² * Dont émissions de gaz à effet de serre peu d’émissions de CO émissions de CO très importantes ² ²

Caractéristiques

Cuisine : oui

Commodités

Cave : oui

Mandat

Téléphone mandataire : +33352850022
E-mail mandataire : Veuillez utiliser le formulaire de contact ci-dessous ...
Négociateur : Delphine FRICHET

Cette annonce m'intéresse

Captcha
* Les champs suivis d'un astérisque sont obligatoires.

Le renseignement des informations marquées d’un astérisque est obligatoire pour permettre le traitement de votre demande. Les autres champs, non obligatoires, ont pour seul objectif de préciser vos réponses. L’Office ci-après « Responsable de traitement », traite des données personnelles vous concernant pour le traitement de votre demande dans le cadre du formulaire de contact renseigné ci-dessus. Ce traitement est fondé sur l’intérêt légitime poursuivi par le responsable du traitement. Les données vous concernant sont conservées pour une durée n’excédant pas le traitement de votre demande. Vos données sont susceptibles de faire l’objet d’un transfert de données personnelles dans les pays dont le niveau de protection n’est pas reconnu comme équivalent par la Commission européenne. En absence de décision d’adéquation, ce transfert est encadré par des garanties adaptées ou approuvées par la Commission Européenne. Conformément à la réglementation, vous pouvez accéder aux données vous concernant. Le cas échéant, vous pouvez demander la rectification ou l’effacement de celles-ci, obtenir la limitation du traitement de ces données ou vous y opposer pour des raisons tenant à votre situation particulière. Ces droits peuvent être exercés directement auprès du Responsable de traitement ou de son Délégué à la protection des données à l’adresse suivante : cil@notaires.fr Si vous pensez, après nous avoir contactés, que vos droits ne sont pas respectés, vous pouvez introduire une réclamation auprès d’une autorité européenne de contrôle : la Commission Nationale de l’Informatique et des Libertés pour la France.
Pour plus d'information, veuillez consulter notre page d'informations relatives à la protection des données personnelles.
Navigateur non pris en charge

Le navigateur Internet Explorer que vous utilisez actuellement ne permet pas d'afficher ce site web correctement.

Nous vous conseillons de télécharger et d'utiliser un navigateur plus récent et sûr tel que Google Chrome, Microsoft Edge, Mozilla Firefox, ou Safari (pour Mac) par exemple.
OK